Terratetto con giardino e garage
Foto immobile/Planimetrie
Caratteristiche immobile
Camere: 3
Bagni: 1
Riscaldamento: Autonomo
Tipo Riscaldamento: Radiatori
Combustibile Riscald.: Metano
95 MQ
110 MQ comm.
Stato immobile: Abitabile
Giardino: Privato
Giardino MQ: 50
Posto auto: SI
Garage: SI
Classe ener.: G
Locali: 5
Balcone: SI
Piano: Terra
Totale piani: 1
Tot. unità presenti: 1
Anno costr.: 1900
Anno ristr.: 2000
Cucina: Abitabile
Spese condominiali: assenti
Esposizione:
Est Sud Ovest
Porta Blindata
Fibra Ottica
Presentazione
BAGNO A RIPOLI - GRASSINA
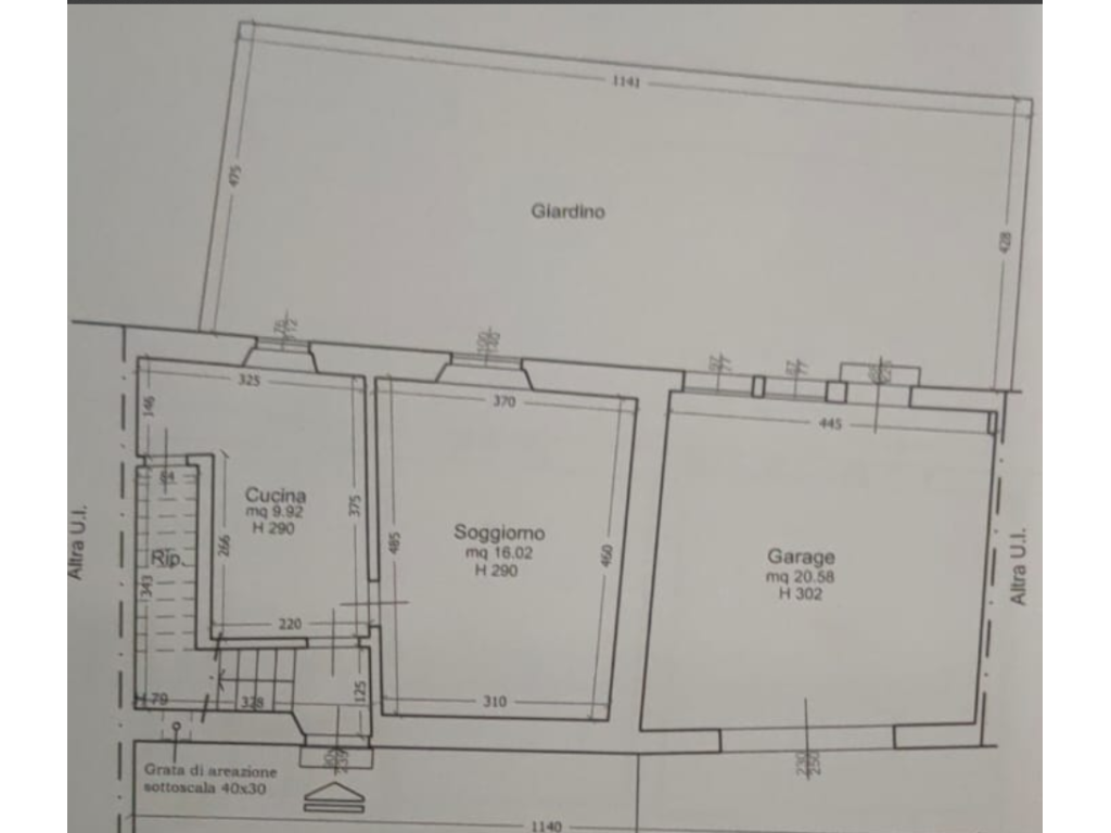
A ridosso del centro in strada senza traffico con affacci nel verde, proponiamo in vendita questo accessoriatissimo terratetto. L'immobile si compone al piano terra da ingresso, cucina abitabile con dispensa-ripostiglio e salotto, tramite scale interne si raggiunge il primo piano che tramite corridoio disimpegna il reparto notte, composto da camera singola con ripostiglio, due camere matrimoniali, balcone con bell'affaccio sul parco e servizio finestrato. Completa la proprietà il giardino di circa 50mq e un grande garage di circa 25mq.
L'immobile è abitabile, ma in un'ottica di vendita va considerato da ristrutturare. termoautono senza nessuna spesa condominiale.
A ridosso del centro in strada senza traffico con affacci nel verde, proponiamo in vendita questo accessoriatissimo terratetto. L'immobile si compone al piano terra da ingresso, cucina abitabile con dispensa-ripostiglio e salotto, tramite scale interne si raggiunge il primo piano che tramite corridoio disimpegna il reparto notte, composto da camera singola con ripostiglio, due camere matrimoniali, balcone con bell'affaccio sul parco e servizio finestrato. Completa la proprietà il giardino di circa 50mq e un grande garage di circa 25mq.
L'immobile è abitabile, ma in un'ottica di vendita va considerato da ristrutturare. termoautono senza nessuna spesa condominiale.
Dove si trova?
Contatto e richiesta informazioni
Invia una richiesta all'agenzia
Agente di riferimento
IM-875
Autorizzo il trattamento dei miei dati personali in base art. 13 del reg. eu 679/2016