Forlì centro storico, appartamento 2 letto e 2 bagni con garage
Foto immobile/Planimetrie
Caratteristiche immobile
Camere: 2
Bagni: 2
Riscaldamento: Autonomo
Tipo Riscaldamento: Radiatori
Combustibile Riscald.: Metano
89 MQ
120 MQ comm.
Stato immobile: Da ristrutturare
Giardino: Comune
Giardino MQ: 500
Posto auto: 1 posto
Garage: SI
Classe ener.: G
Consumo ipe: 215 kwh/mq
Locali: 4
Balcone: SI
Anno costr.: 1800
Anno ristr.: 2020
Cucina: Cucinotto
Spese condominiali: 80 €
Spese rata: Mensile
Esposizione:
Est Sud
Porta Blindata
Cancello Elettrico
VideoCitofono
Fibra Ottica
Presentazione
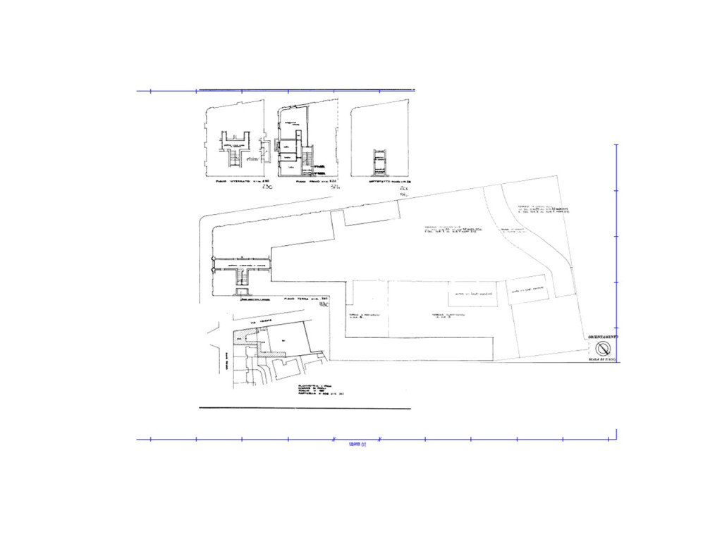
A Forlì, in una delle vie più tranquille e riservate del centro storico, è disponibile un appartamento al primo piano di un palazzo storico completamente restaurato nelle sue parti comuni, con particolare attenzione alla conservazione del carattere architettonico originale. L’edificio è impreziosito da un ampio giardino condominiale e da una corte interna, elementi rari e preziosi in questa zona della città, pur restando a pochi passi da tutti i servizi e dalle principali arterie stradali. Le finestre dell’appartamento si affacciano direttamente sulla rocca di Caterina Sforza, offrendo una vista aperta e suggestiva su uno dei simboli più affascinanti della storia forlivese.
L’ingresso si apre su un salone ampio e luminoso, con spazi ben distribuiti e una piacevole esposizione alla luce naturale. La cucina, separata e collocata in nicchia, consente di mantenere la zona giorno ordinata e funzionale, perfetta per chi ama cucinare senza rinunciare all’eleganza degli ambienti. La zona notte è composta da una camera matrimoniale dalle dimensioni generose e una camera singola, entrambe silenziose e ben illuminate. I due bagni, di cui uno cieco e di servizio, completano la distribuzione interna.
A rendere ancora più interessante la proprietà, vi è un garage di ampie dimensioni, capace di ospitare comodamente un’auto e spazio aggiuntivo per biciclette o attrezzature, oltre a un posto auto esterno, entrambi facilmente accessibili tramite cancello carrabile automatizzato dalla via laterale. Questa soluzione rappresenta un’opportunità unica per chi desidera vivere in centro storico senza rinunciare alla comodità degli spazi, alla bellezza del verde e alla praticità di un’abitazione ben servita e pronta da abitare.
L’ingresso si apre su un salone ampio e luminoso, con spazi ben distribuiti e una piacevole esposizione alla luce naturale. La cucina, separata e collocata in nicchia, consente di mantenere la zona giorno ordinata e funzionale, perfetta per chi ama cucinare senza rinunciare all’eleganza degli ambienti. La zona notte è composta da una camera matrimoniale dalle dimensioni generose e una camera singola, entrambe silenziose e ben illuminate. I due bagni, di cui uno cieco e di servizio, completano la distribuzione interna.
A rendere ancora più interessante la proprietà, vi è un garage di ampie dimensioni, capace di ospitare comodamente un’auto e spazio aggiuntivo per biciclette o attrezzature, oltre a un posto auto esterno, entrambi facilmente accessibili tramite cancello carrabile automatizzato dalla via laterale. Questa soluzione rappresenta un’opportunità unica per chi desidera vivere in centro storico senza rinunciare alla comodità degli spazi, alla bellezza del verde e alla praticità di un’abitazione ben servita e pronta da abitare.
Dove si trova?
Contatto e richiesta informazioni
Invia una richiesta all'agenzia
Agente di riferimento
Agnese Briccolani
IM-836
Autorizzo il trattamento dei miei dati personali in base art. 13 del reg. eu 679/2016