Sei vani nel cuore di Prato con terrazza abitabile e garage
Foto immobile/Planimetrie
Caratteristiche immobile
Camere: 3
Bagni: 1
Riscaldamento: Autonomo
Tipo Riscaldamento: Radiatori
Combustibile Riscald.: Metano
115 MQ
140 MQ comm.
Stato immobile: Da ristrutturare
Garage: SI
Classe ener.: G
Locali: 6
Balcone: SI, 2 balconi
Terrazzo: SI
Cantina: SI
Arredamento: Parziale
Piano: Primo
Totale piani: 3
Tot. unità presenti: 10
Anno costr.: 1970
Cucina: Abitabile
Spese condominiali: assenti
Porta Blindata
Fibra Ottica
Presentazione
Zarini - Repubblica, Prato
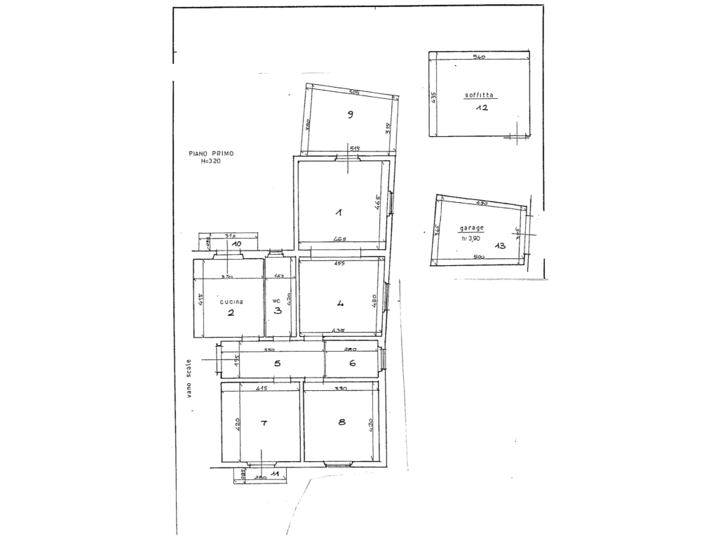
In signorile contesto residenziale situato nei pressi di Via Valentini, una delle zone più ricercate e prestigiose di Prato Est, posto al primo piano senza ascensore, proponiamo un ampio e luminoso appartamento di 6 vani per circa 115 mq, arricchito da una splendida terrazza abitabile e garage privato. L’immobile si apre su un accogliente e spazioso ingresso che disimpegna perfettamente i vari ambienti: una cucina abitabile funzionale e una sala doppia di ampie dimensioni, caratterizzata da un esposizione che garantisce una luminosità eccezionale in ogni ora del giorno.
La zona notte, ben separata, è composta da due ampie camere matrimoniali dai volumi generosi, un comodo ufficio ideale per lo smart working o come terza camera, e un servizio finestrato. La proprietà vanta una distribuzione degli spazi ottimale e una rara dotazione di sfoghi esterni: due balconi di servizio e una magnifica terrazza abitabile, spazio perfetto per momenti di relax all'aperto e convivialità.
Completano la proprietà un indispensabile garage privato, valore aggiunto fondamentale in questa zona, e una soffitta ad uso ripostiglio. Grazie alla pianta regolare e alla generosa metratura, l’appartamento si presta a diverse soluzioni di personalizzazione interna, offrendo la possibilità di creare una zona living open space di assoluto impatto.
Soluzione ideale per famiglie o professionisti alla ricerca di una residenza di prestigio, caratterizzata da ambienti ariosi e situata in una posizione strategica, a pochi passi dai principali servizi e dai collegamenti autostradali.
In signorile contesto residenziale situato nei pressi di Via Valentini, una delle zone più ricercate e prestigiose di Prato Est, posto al primo piano senza ascensore, proponiamo un ampio e luminoso appartamento di 6 vani per circa 115 mq, arricchito da una splendida terrazza abitabile e garage privato. L’immobile si apre su un accogliente e spazioso ingresso che disimpegna perfettamente i vari ambienti: una cucina abitabile funzionale e una sala doppia di ampie dimensioni, caratterizzata da un esposizione che garantisce una luminosità eccezionale in ogni ora del giorno.
La zona notte, ben separata, è composta da due ampie camere matrimoniali dai volumi generosi, un comodo ufficio ideale per lo smart working o come terza camera, e un servizio finestrato. La proprietà vanta una distribuzione degli spazi ottimale e una rara dotazione di sfoghi esterni: due balconi di servizio e una magnifica terrazza abitabile, spazio perfetto per momenti di relax all'aperto e convivialità.
Completano la proprietà un indispensabile garage privato, valore aggiunto fondamentale in questa zona, e una soffitta ad uso ripostiglio. Grazie alla pianta regolare e alla generosa metratura, l’appartamento si presta a diverse soluzioni di personalizzazione interna, offrendo la possibilità di creare una zona living open space di assoluto impatto.
Soluzione ideale per famiglie o professionisti alla ricerca di una residenza di prestigio, caratterizzata da ambienti ariosi e situata in una posizione strategica, a pochi passi dai principali servizi e dai collegamenti autostradali.
Dove si trova?
Contatto e richiesta informazioni
Invia una richiesta all'agenzia
Agente di riferimento
Saverio Atalanti
IM-923
Autorizzo il trattamento dei miei dati personali in base art. 13 del reg. eu 679/2016