Casa indipendente con ampio giardino
Foto immobile/Planimetrie
Caratteristiche immobile
Camere: 3
Bagni: 3
Riscaldamento: Autonomo
Tipo Riscaldamento: Radiatori
Combustibile Riscald.: Metano
331 MQ
350 MQ comm.
Stato immobile: Abitabile
Giardino: Privato
Giardino MQ: 1000
Posto auto: oltre 2 posti
Garage: Singolo
Classe ener.: E
Consumo ipe: 445 kwh/mq
Locali: 16
Cantina: SI
Arredamento: Parziale
Su più livelli
Totale piani: 3
Tot. unità presenti: 1
Anno costr.: 1970
Anno ristr.: 2000
Cucina: Abitabile
Spese condominiali: assenti
Esposizione:
Nord Est Sud Ovest
Porta Blindata
Camino/Caminetto
Fibra Ottica
Piscina
Taverna
Presentazione
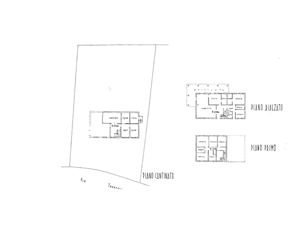
Casa indipendente di ampia metratura, circondata da un parco privato di circa 1.000 mq che si sviluppa su tutti i lati dell’edificio. L’immobile, solido nella struttura e versatile nella distribuzione, si articola su tre livelli principali.
Al piano seminterrato sono presenti cantina, taverna e autorimessa, ambienti di servizio ben dimensionati e funzionali. Il piano rialzato ospita l’unità abitativa principale, composta da un’ampia zona giorno con salone dotato di camino, doppia cucina con sala da pranzo, due camere da letto e un bagno. Le numerose porte-finestre garantiscono un collegamento diretto con il porticato e il giardino, favorendo una fruizione continua degli spazi interni ed esterni. Il piano primo è attualmente organizzato come zona notte, ma per caratteristiche e superficie si presta alla realizzazione di un secondo appartamento indipendente, rendendo la proprietà idonea anche a un utilizzo bifamiliare.
La casa si presenta in condizioni complessivamente buone e immediatamente abitabili, pur richiedendo interventi di manutenzione ordinaria e aggiornamento degli impianti e delle finiture, al fine di adeguarla agli standard abitativi contemporanei e valorizzarne appieno il potenziale.
Una soluzione indipendente con spazi interni ed esterni generosi, adatta a chi ricerca una residenza principale con possibilità di personalizzazione o un investimento per la creazione di più unità abitative.
Al piano seminterrato sono presenti cantina, taverna e autorimessa, ambienti di servizio ben dimensionati e funzionali. Il piano rialzato ospita l’unità abitativa principale, composta da un’ampia zona giorno con salone dotato di camino, doppia cucina con sala da pranzo, due camere da letto e un bagno. Le numerose porte-finestre garantiscono un collegamento diretto con il porticato e il giardino, favorendo una fruizione continua degli spazi interni ed esterni. Il piano primo è attualmente organizzato come zona notte, ma per caratteristiche e superficie si presta alla realizzazione di un secondo appartamento indipendente, rendendo la proprietà idonea anche a un utilizzo bifamiliare.
La casa si presenta in condizioni complessivamente buone e immediatamente abitabili, pur richiedendo interventi di manutenzione ordinaria e aggiornamento degli impianti e delle finiture, al fine di adeguarla agli standard abitativi contemporanei e valorizzarne appieno il potenziale.
Una soluzione indipendente con spazi interni ed esterni generosi, adatta a chi ricerca una residenza principale con possibilità di personalizzazione o un investimento per la creazione di più unità abitative.
Dove si trova?
Contatto e richiesta informazioni
Invia una richiesta all'agenzia
Agente di riferimento
Agnese Briccolani
IM-857
Autorizzo il trattamento dei miei dati personali in base art. 13 del reg. eu 679/2016