Villa con ampio parco San Piero in Bagno
Foto immobile/Planimetrie
Caratteristiche immobile
Camere: 6
Bagni: 4
Riscaldamento: Autonomo
Tipo Riscaldamento: Radiatori
Combustibile Riscald.: Metano
416 MQ
435 MQ comm.
Stato immobile: Buono
Giardino: Privato
Giardino MQ: 1200
Posto auto: oltre 2 posti
Garage: Singolo
Classe ener.: G
Consumo ipe: 425 kwh/mq
Locali: 16
Balcone: SI, oltre 3 balconi
Terrazzo: SI
Cantina: SI
Su più livelli
Totale piani: 3
Tot. unità presenti: 1
Anno costr.: 1980
Cucina: Abitabile
Spese condominiali: assenti
Esposizione:
Nord Est Sud Ovest
Porta Blindata
Allarme
Cancello Elettrico
Camino/Caminetto
Fibra Ottica
Taverna
Presentazione
Nel cuore di San Piero in Bagno, in posizione centrale ma al tempo stesso riservata e immersa nel verde, proponiamo una villa indipendente di ampia metratura, inserita in un lotto di circa 1.300 metri quadrati completamente recintato e dotato di accesso carrabile. La proprietà si sviluppa su tre livelli per una superficie complessiva di circa 416 mq, oltre ad autorimessa pertinenziale, e rappresenta una soluzione rara nel panorama immobiliare locale per dimensioni, solidità strutturale e potenzialità di valorizzazione.
La posizione è uno degli elementi più distintivi. L’immobile si trova a pochi minuti dalla rinomata stazione termale di Bagno di Romagna, polo di riferimento per il turismo benessere e per una clientela nazionale e internazionale che ricerca relax, natura e qualità della vita. Nelle immediate vicinanze sono presenti ristoranti di alto livello, tra cui una realtà stellata situata a meno di 500 metri dalla proprietà, elemento che contribuisce a rafforzare l’appeal della zona anche sotto il profilo gastronomico. La presenza dell’E45 consente collegamenti rapidi verso la Riviera Romagnola, Roma e l’intero asse centro-italiano, rendendo la villa facilmente raggiungibile sia per chi desidera una residenza stabile sia per chi valuta un utilizzo turistico o ricettivo. A completare il contesto, il ruscello che lambisce la proprietà crea un’atmosfera di grande suggestione, aggiungendo valore paesaggistico e una sensazione di continuità con il territorio naturale della Romagna Toscana.
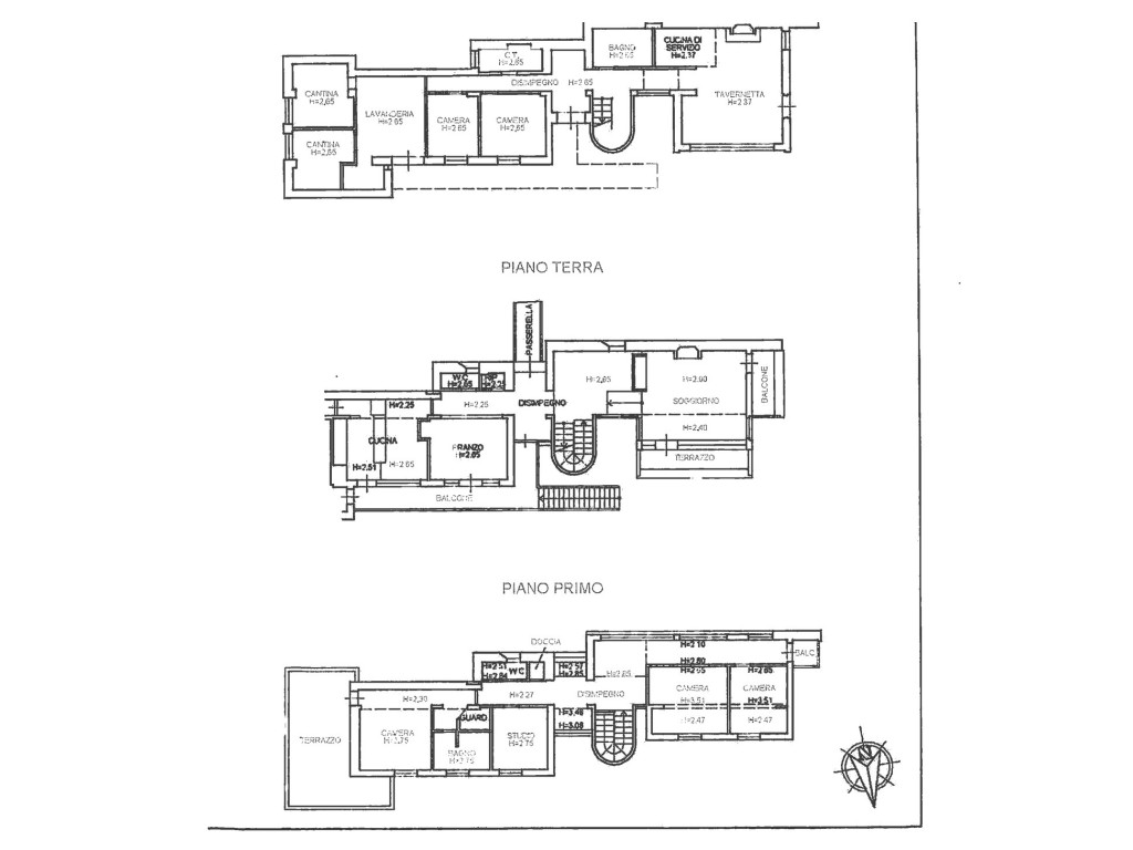
Dal punto di vista costruttivo, l’edificio rispecchia la qualità strutturale tipica degli anni Ottanta, con struttura portante interamente in cemento armato e finiture esterne impreziosite da sasso a vista. Si tratta di una base solida, tecnicamente affidabile, che non necessita di interventi strutturali e che offre ampi margini di personalizzazione per eventuali riqualificazioni estetiche o energetiche. La distribuzione interna, articolata su piano seminterrato, piano terra e piano primo, è già predisposta per una possibile suddivisione in più unità immobiliari indipendenti su base orizzontale. Questa caratteristica rende la villa particolarmente interessante non solo come residenza unifamiliare di rappresentanza, ma anche come soluzione multi-generazionale, come abitazione con studio professionale o come progetto di frazionamento finalizzato alla creazione di tre o più unità autonome.
Gli spazi esterni rappresentano un ulteriore punto di forza. Il parco, completamente piantumato e ben mantenuto, garantisce privacy e qualità abitativa, con la possibilità di ricavare più posti auto all’interno della proprietà oltre all’autorimessa di generose dimensioni. Numerosi balconi e terrazzi ampliano la vivibilità dei vari livelli, offrendo affacci sul verde e scorci aperti sul paesaggio circostante. L’insieme crea un equilibrio raro tra centralità urbana e dimensione naturale, consentendo di vivere il paese a piedi senza rinunciare alla tranquillità e agli spazi aperti.
Internamente l’immobile presenta pavimentazioni in cotto ai piani inferiori e parquet al piano primo, infissi in legno con doppi vetri, riscaldamento autonomo a gas metano e finiture che conservano il carattere originario della costruzione. Le condizioni generali sono buone e permettono un utilizzo immediato, lasciando al futuro acquirente la possibilità di intervenire con aggiornamenti mirati per elevare ulteriormente il livello qualitativo complessivo.
In un mercato come quello di San Piero in Bagno, caratterizzato da una disponibilità limitata di immobili indipendenti di grande metratura in posizione centrale, una proprietà di 416 mq con parco privato, struttura in cemento armato, sasso a vista, terrazzi, balconi e potenzialità di frazionamento rappresenta un’opportunità concreta sia per chi desidera una residenza importante sia per investitori orientati al turismo termale e alla ricettività di fascia medio-alta. La combinazione tra posizione strategica, vicinanza alle terme, ristorazione di livello, collegamenti viari efficienti e contesto naturale rende questa villa un bene patrimoniale solido e difficilmente replicabile.
La posizione è uno degli elementi più distintivi. L’immobile si trova a pochi minuti dalla rinomata stazione termale di Bagno di Romagna, polo di riferimento per il turismo benessere e per una clientela nazionale e internazionale che ricerca relax, natura e qualità della vita. Nelle immediate vicinanze sono presenti ristoranti di alto livello, tra cui una realtà stellata situata a meno di 500 metri dalla proprietà, elemento che contribuisce a rafforzare l’appeal della zona anche sotto il profilo gastronomico. La presenza dell’E45 consente collegamenti rapidi verso la Riviera Romagnola, Roma e l’intero asse centro-italiano, rendendo la villa facilmente raggiungibile sia per chi desidera una residenza stabile sia per chi valuta un utilizzo turistico o ricettivo. A completare il contesto, il ruscello che lambisce la proprietà crea un’atmosfera di grande suggestione, aggiungendo valore paesaggistico e una sensazione di continuità con il territorio naturale della Romagna Toscana.
Dal punto di vista costruttivo, l’edificio rispecchia la qualità strutturale tipica degli anni Ottanta, con struttura portante interamente in cemento armato e finiture esterne impreziosite da sasso a vista. Si tratta di una base solida, tecnicamente affidabile, che non necessita di interventi strutturali e che offre ampi margini di personalizzazione per eventuali riqualificazioni estetiche o energetiche. La distribuzione interna, articolata su piano seminterrato, piano terra e piano primo, è già predisposta per una possibile suddivisione in più unità immobiliari indipendenti su base orizzontale. Questa caratteristica rende la villa particolarmente interessante non solo come residenza unifamiliare di rappresentanza, ma anche come soluzione multi-generazionale, come abitazione con studio professionale o come progetto di frazionamento finalizzato alla creazione di tre o più unità autonome.
Gli spazi esterni rappresentano un ulteriore punto di forza. Il parco, completamente piantumato e ben mantenuto, garantisce privacy e qualità abitativa, con la possibilità di ricavare più posti auto all’interno della proprietà oltre all’autorimessa di generose dimensioni. Numerosi balconi e terrazzi ampliano la vivibilità dei vari livelli, offrendo affacci sul verde e scorci aperti sul paesaggio circostante. L’insieme crea un equilibrio raro tra centralità urbana e dimensione naturale, consentendo di vivere il paese a piedi senza rinunciare alla tranquillità e agli spazi aperti.
Internamente l’immobile presenta pavimentazioni in cotto ai piani inferiori e parquet al piano primo, infissi in legno con doppi vetri, riscaldamento autonomo a gas metano e finiture che conservano il carattere originario della costruzione. Le condizioni generali sono buone e permettono un utilizzo immediato, lasciando al futuro acquirente la possibilità di intervenire con aggiornamenti mirati per elevare ulteriormente il livello qualitativo complessivo.
In un mercato come quello di San Piero in Bagno, caratterizzato da una disponibilità limitata di immobili indipendenti di grande metratura in posizione centrale, una proprietà di 416 mq con parco privato, struttura in cemento armato, sasso a vista, terrazzi, balconi e potenzialità di frazionamento rappresenta un’opportunità concreta sia per chi desidera una residenza importante sia per investitori orientati al turismo termale e alla ricettività di fascia medio-alta. La combinazione tra posizione strategica, vicinanza alle terme, ristorazione di livello, collegamenti viari efficienti e contesto naturale rende questa villa un bene patrimoniale solido e difficilmente replicabile.
Dove si trova?
Contatto e richiesta informazioni
Invia una richiesta all'agenzia
Agente di riferimento
Maria Letizia Menghi
IM-921
Autorizzo il trattamento dei miei dati personali in base art. 13 del reg. eu 679/2016